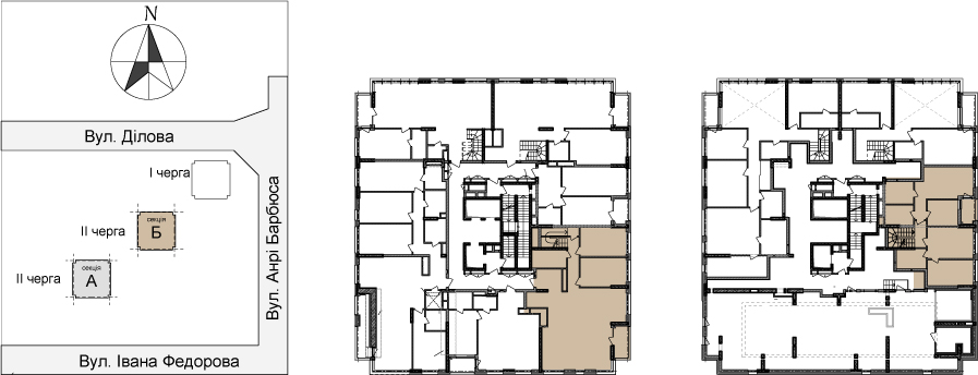
Планування
4К 220,00 м2
1.1
Коридор
26,40м2
1.2
Коридор
3,60м2
2.1
Кухня
17,80м2
2.2
Вітальня
43,04м2
3.1
Житлова кімната
15,16м2
3.2
Житлова кімната
15,13м2
3.3
Житлова кімната
16,28м2
3.4
Житлова кімната
21,96м2
4.1
Санвузол
7,39м2
4.2
Санвузол
6,67м2
4.3
Санвузол
7,30м2
5.1
Балкон
2,44м2
5.2
Лоджія
3,81м2
6.1
Комора
3,62м2
6.2
Гардеробна
9,31м2
6.3
Гардеробна
13,58м2
6.4
Гардеробна
6,51м2
