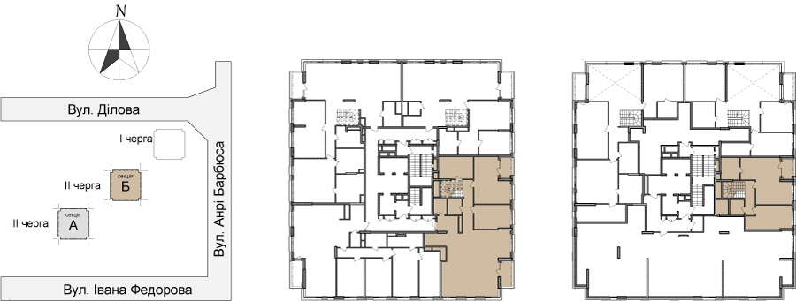
Планування
4К 220 м2
1.1
Коридор
12,30м2
1.3
Коридор
6,1м2
2.1
Кухня
20,0м2
2.2
Вітальня
43,3м2
3.1
Житлова кімната
15,1м2
3.2
Житлова кімната
24,5м2
3.3
Житлова кімната
17,4м2
3.4
Житлова кімната
30,4м2
4.1
Санвузол
3,9м2
4.2
Санвузол
7,1м2
4.3
Санвузол
3,7м2
5.1
Балкон
2,3м2
5.2
Лоджія
1,8м2
5.3
Лоджія
1,8м2
6.1
Гардеробна
13,0м2
6.2
Гардеробна
3,7м2
