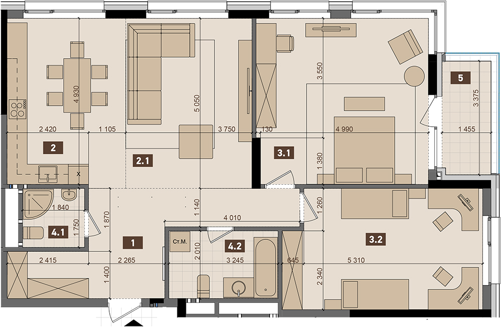
Планування
2К 108,71 м2
1
Коридор
15,36м2
2
Кухня
17,51м2
2.1
Вітальня
18,94м2
3.1
Житлова кімната
25,06м2
3.2
Житлова кімната
20,63м2
4.1
Санвузол
3,22м2
4.2
Санвузол
6,52м2
5
Балкон
1,47м2
