Ua
En
Main
About the complex
Panorama
Participants of the project
Surroundings
Infrastructure
Planning
Building procedure
Gallery
News
Contacts
Tetris Hall
Apartments
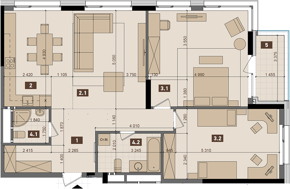
2 - room apartments
2К
Planing
2К
108,71 m
2
< Back
Feedback
Запис на
консультацію